Villa a schiera in vendita

Santo Stefano Del Sole, Via Toppolo - Toppolo
€ 180.000
4 locali 4 locali
180 Mq 180 Mq
3 bagni 3 bagni

Villa a schiera in vendita

Santo Stefano Del Sole, Via Toppolo - Toppolo

Descrizione annuncio

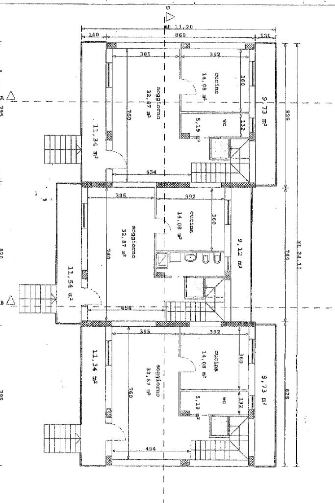
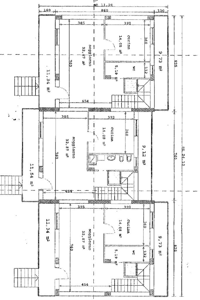
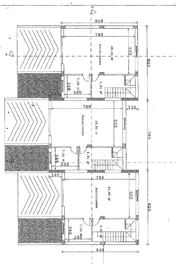
SANTO STEFANO DEL SOLE - La Tecnocasa di Serino propone in vendita villa a schiera di nuova costruzione, attualmente allo stato grezzo, ma che verrà consegnata completamente rifinita da capitolato. L’abitazione si sviluppa su tre livelli e offre ambienti spaziosi, ben distribuiti e pensati per garantire comfort e funzionalità. Al piano terra troviamo un ampio garage e deposito. Il primo piano è composto da salone/cucina open space con bagno. Al piano superiore si trovano tre camere da letto e un secondo bagno. Sul retro dell’abitazione è presente un giardino di circa 50 mq, ideale per momenti di relax. La zona è tranquilla e residenziale, ben collegata e comoda ai servizi. La villa verrà completata con finiture a scelta da capitolato, offrendo la possibilità di personalizzare gli interni secondo il proprio gusto. Basterà inoltre, rivolgersi in ufficio per ogni informazione riguardanti le caratteristiche tecniche, la tipologia dei materiali usati e finiture interne ed esterne.

Mostra tutto

Caratteristiche

Rif.:
61103405
Piano:
3 di 3 (Piano su più livelli)
Box:
1
Posti auto:
1
Balconi:
2
Camere da letto:
3
Mostra tutto
Prezzo Prezzo
€ 180.000
Rata mutuo Rata mutuo
€ 830 / mese
Spese annue Spese annue
€ 0
Proponi il tuo prezzoProponi il tuo prezzo

Classe Energetica

Questo immobile è esente da classe energetica
Anno di costruzione:
2013
Riscaldamento:
Autonomo
Tipo impianto:
A radiatori
Tipo alimentazione:
Metano

Ti interessa visionare l'immobile?

Fissa un appuntamento  Fissa un appuntamento

Richiedi informazioni

* Questi campi sono obbligatori

Calcola il tuo mutuo

Semplice e senza impegno
Anticipo

( % )
Mutuo

( % )

pochi semplici passi

inserisci i tuoi dati
Questionario completato
Grazie per aver richiesto un appuntamento senza impegno con un nostro Consulente del Credito e Assicurativo.

Hai inserito correttamente tutti i dati necessari e a breve riceverai una e-mail con un link da convalidare per inviare i tuoi dati.
Affiliato
My House D.I.
Via Pescatore, 20/a 83028 Serino (AV)

Il nostro staff


  • Giampiero Russo
    Affiliato

  • Mauro D'Angelo
    Collaboratore

  • Valentina Faggiano
    Coordinatrice

  • Carmen Guarino
    Collaboratrice
Via Pescatore, 20/a 83028 Serino (AV)
Zona: Serino-Aiello del Sabato-Santo Stefano del Sole-San Michele di Serino
Mostra su mappa
Orari: Lunedì: 09:00 - 13:00 15:30 - 20:00 Martedì: 09:00 - 13:00 15:30 - 20:00 Mercoledì: 09:00 - 13:00 15:30 - 20:00 Giovedì: 09:00 - 13:00 15:30 - 20:00 Venerdì: 09:00 - 13:00 15:30 - 20:00 Sabato: 09:00 - 13:00 pomeriggio: Si riceve previo appuntamento Domenica: Chiuso
Affiliato
My House D.I.
Via Pescatore, 20/a 83028 Serino (AV)

2025 Tecnocasa Franchising S.p.A. - P. IVA 08365160152 - Via Monte Bianco 60/A 20089 Rozzano (MI). Ogni agenzia ha un proprio titolare ed è autonoma. Privacy policy | Policy utilizzo | Cookie policy