Bifamiliare in vendita

Santa Lucia Di Serino, Via Areusta
€ 220.000
4 locali 4 locali
320 Mq 320 Mq
2 bagni 2 bagni

Bifamiliare in vendita

Santa Lucia Di Serino, Via Areusta

Descrizione annuncio

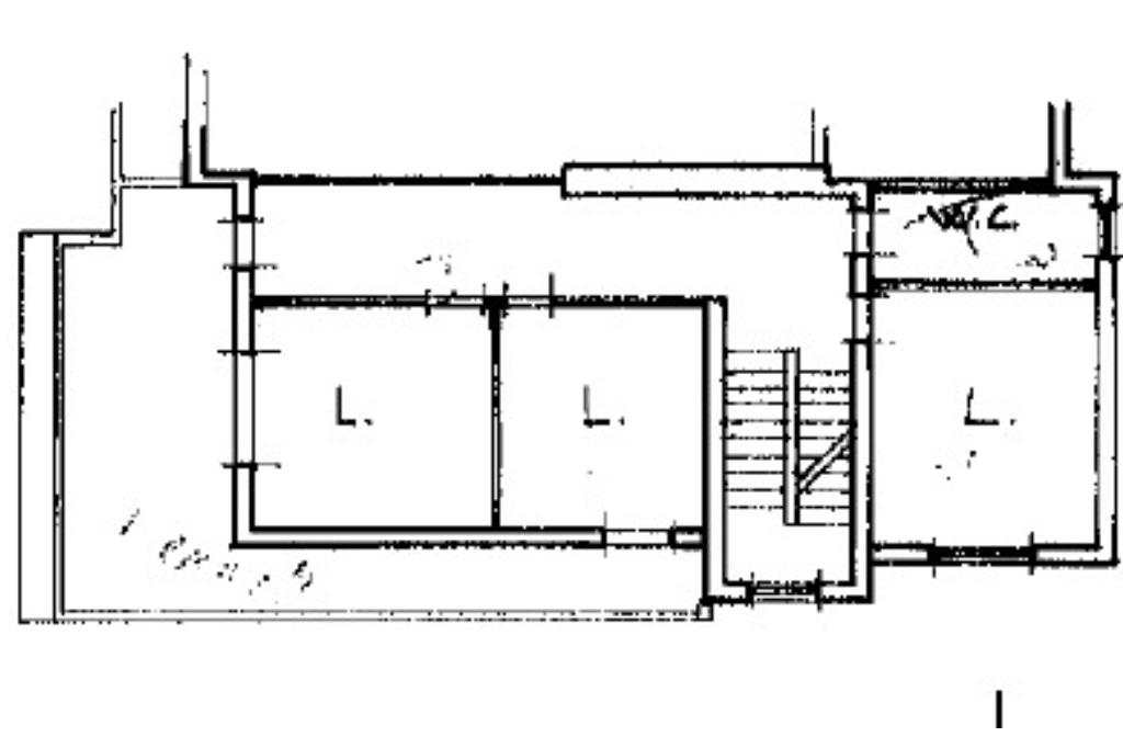
SANTA LUCIA DI SERINO – La Tecnocasa di Serino propone in vendita centralissima villa bifamiliare composta da 2 unità con ingresso indipendente. Si tratta di una soluzione ideale per chi desidera ampi spazi, indipendenza e la possibilità di usufruire di più unità abitative all’interno della stessa proprietà. Il fabbricato è articolato in due porzioni affiancate e con identica distribuzione interna: la porzione di destra si presenta rifinita e pronta all’uso, mentre la porzione di sinistra è allo stato grezzo, offrendo la possibilità di personalizzare gli ambienti secondo le proprie esigenze. Ciascuna unità abitativa sviluppa una superficie di circa 160 mq ed è così distribuita: al piano rialzato si accede ad un ampio salone con affaccio diretto sul terrazzo, una cucina abitabile ed un bagno. La zona notte, posta al primo piano, è composta da tre spaziose camere da letto, di cui una con terrazzo e bagno. Il sottotetto, al secondo ed ultimo piano, è di circa 50 mq, attualmente allo stato grezzo. A completamento vi sono anche 190 mq di locali multiuso (con annesso bagno) e comodo garage di circa 18 mq. La villa, esternamente, è abbracciata da un generoso spazio esterno di circa 800 mq. Inserita in un contesto residenziale composto prevalentemente da villette, la proprietà gode di un ambiente riservato e ordinato, ideale per chi ricerca tranquillità senza rinunciare alla comodità dei servizi.

Mostra tutto

Nelle vicinanze

Trasporto pubblico Trasporto pubblico
Serino
Serino
1,8 Km
San Michele di Serino
San Michele di Serino
1,7 Km
Scuole Scuole
Scuole
220 m
Mostra tutto

Caratteristiche

Rif.:
61171961
Piano:
2 di 3 (Piano su piĂš livelli)
Box:
1
Posti auto:
1
Balconi:
2
Terrazzi:
2
Mostra tutto
Prezzo Prezzo
€ 220.000
Rata mutuo Rata mutuo
€ 1.040 / mese
Spese annue Spese annue
€ 0
Proponi il tuo prezzoProponi il tuo prezzo

Classe Energetica

G
G
G
G
G
G
G
G
G
EP globale non rinnovabile:
186.89 kW h/m² anno
EP globale rinnovabile:
0.00 kW h/m² anno
EP invernale del fabbricato:
EP estiva del fabbricato:
Anno di costruzione:
1980
Riscaldamento:
Autonomo
Tipo impianto:
A radiatori
Tipo alimentazione:
Metano

Ti interessa visionare l'immobile?

Fissa un appuntamento  Fissa un appuntamento

Richiedi informazioni

Clicca su Leggi per aprire l'informativa
* Questi campi sono obbligatori

Calcola il tuo mutuo

Semplice e senza impegno
Anticipo

( % )
Mutuo

( % )

pochi semplici passi

inserisci i tuoi dati
Questionario completato
Grazie per aver richiesto un appuntamento senza impegno con un nostro Consulente del Credito e Assicurativo.

Hai inserito correttamente tutti i dati necessari e a breve riceverai una e-mail con un link da convalidare per inviare i tuoi dati.
Affiliato
My House D.I.
Via Pescatore, 20/a 83028 Serino (AV)

Il nostro staff


  • Giampiero Russo
    Affiliato

  • Mauro D'Angelo
    Collaboratore

  • Valentina Faggiano
    Coordinatrice

  • Carmen Guarino
    Collaboratrice
Via Pescatore, 20/a 83028 Serino (AV)
Zona: Serino-Aiello del Sabato-Santo Stefano del Sole-San Michele di Serino
Mostra su mappa
Orari: LunedĂŹ: 09:00 - 13:00 15:30 - 20:00 MartedĂŹ: 09:00 - 13:00 15:30 - 20:00 MercoledĂŹ: 09:00 - 13:00 15:30 - 20:00 GiovedĂŹ: 09:00 - 13:00 15:30 - 20:00 VenerdĂŹ: 09:00 - 13:00 15:30 - 20:00 Sabato: 09:00 - 13:00 pomeriggio: Si riceve previo appuntamento Domenica: Chiuso
Affiliato
My House D.I.
Via Pescatore, 20/a 83028 Serino (AV)

2026 Tecnocasa Franchising S.p.A. - P. IVA 08365160152 - Via Monte Bianco 60/A 20089 Rozzano (MI). Ogni agenzia ha un proprio titolare ed è autonoma. Privacy policy | Policy utilizzo | Cookie policy