Villa singola in vendita

San Michele Di Serino, Via Campo Santa Maria
€ 205.000
7 locali 7 locali
220 Mq 220 Mq
4 bagni 4 bagni

Villa singola in vendita

San Michele Di Serino, Via Campo Santa Maria

Descrizione annuncio

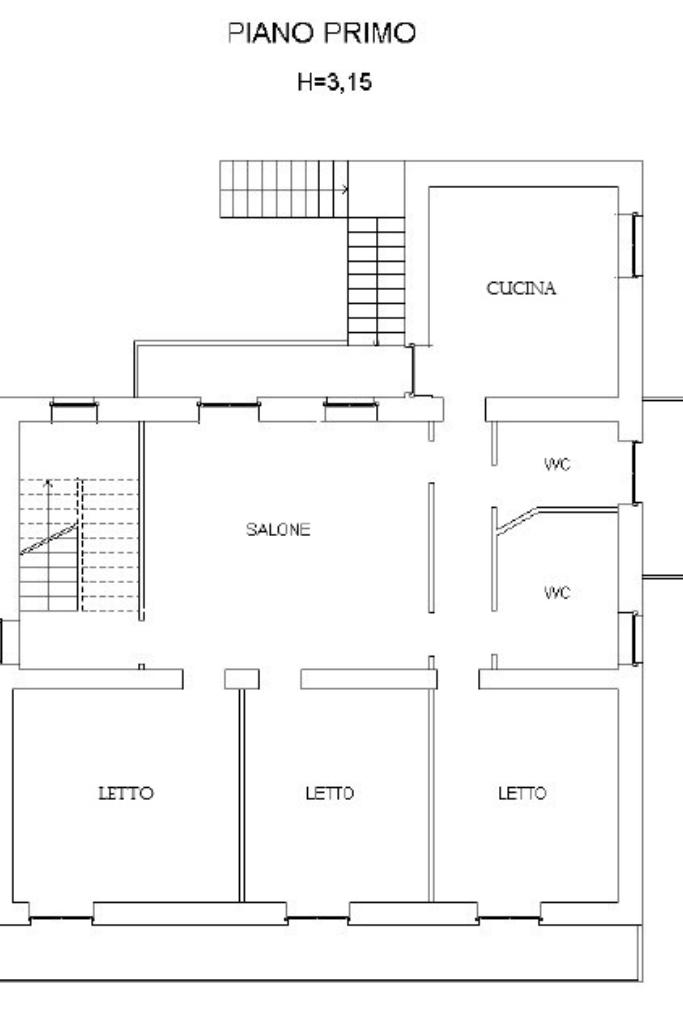
SAN MICHELE DI SERINO - Nel cuore del paese, in posizione centrale e comoda a tutti i principali servizi, la Tecnocasa di Serino propone in vendita villa bifamiliare, circondata da spazio esterno di circa 1.000 mq La proprietà si sviluppa su due livelli, ciascuno occupato da un appartamento indipendente. Al piano terra, l’abitazione si estende per circa 100 mq e si compone di ingresso, cucina, salone, due camere da letto, due bagni e due ripostigli. Di pertinenza vi è anche una comoda cantina di 18 mq. Al primo piano, di circa 120 mq, si sviluppa il secondo appartamento, composto da ingresso, cucina, salone, tre camere da letto e due bagni. Quest’ultimo è stato recentemente migliorato con la sostituzione completa degli infissi, garantendo un comfort superiore sia dal punto di vista termico che acustico. Completa la proprietà un sottotetto grezzo di circa 100 mq. La presenza di un doppio ingresso carrabile rende la gestione degli accessi comoda e autonoma per entrambe le unità. Una soluzione perfetta per famiglie numerose o per chi cerca due abitazioni vicine ma indipendenti.

Mostra tutto

Nelle vicinanze

Trasporto pubblico Trasporto pubblico
Serino
Serino
1,7 Km
San Michele di Serino
San Michele di Serino
350 m
Scuole Scuole
Scuole
1,5 Km
Bar Bar
QBR
2,3 Km
Mostra tutto

Caratteristiche

Rif.:
61129846
Piano:
2 di 2 (Piano su più livelli)
Posti auto:
2
Balconi:
2
Terrazzi:
1
Camere da letto:
5
Mostra tutto
Prezzo Prezzo
€ 205.000
Rata mutuo Rata mutuo
€ 971 / mese
Spese annue Spese annue
€ 0
Proponi il tuo prezzoProponi il tuo prezzo

Classe Energetica

G
G
G
G
G
G
G
G
G
EP globale non rinnovabile:
186.89 kW h/m² anno
EP globale rinnovabile:
0.00 kW h/m² anno
EP invernale del fabbricato:
EP estiva del fabbricato:
Anno di costruzione:
1976
Riscaldamento:
Autonomo
Tipo impianto:
A radiatori
Tipo alimentazione:
Altro

Ti interessa visionare l'immobile?

Fissa un appuntamento  Fissa un appuntamento

Richiedi informazioni

Clicca su Leggi per aprire l'informativa
* Questi campi sono obbligatori

Calcola il tuo mutuo

Semplice e senza impegno
Anticipo

( % )
Mutuo

( % )

pochi semplici passi

inserisci i tuoi dati
Questionario completato
Grazie per aver richiesto un appuntamento senza impegno con un nostro Consulente del Credito e Assicurativo.

Hai inserito correttamente tutti i dati necessari e a breve riceverai una e-mail con un link da convalidare per inviare i tuoi dati.
Affiliato
My House D.I.
Via Pescatore, 20/a 83028 Serino (AV)

Il nostro staff


  • Giampiero Russo
    Affiliato

  • Mauro D'Angelo
    Collaboratore

  • Valentina Faggiano
    Coordinatrice

  • Carmen Guarino
    Collaboratrice
Via Pescatore, 20/a 83028 Serino (AV)
Zona: Serino-Aiello del Sabato-Santo Stefano del Sole-San Michele di Serino
Mostra su mappa
Orari: Lunedì: 09:00 - 13:00 15:30 - 20:00 Martedì: 09:00 - 13:00 15:30 - 20:00 Mercoledì: 09:00 - 13:00 15:30 - 20:00 Giovedì: 09:00 - 13:00 15:30 - 20:00 Venerdì: 09:00 - 13:00 15:30 - 20:00 Sabato: 09:00 - 13:00 pomeriggio: Si riceve previo appuntamento Domenica: Chiuso
Affiliato
My House D.I.
Via Pescatore, 20/a 83028 Serino (AV)

2026 Tecnocasa Franchising S.p.A. - P. IVA 08365160152 - Via Monte Bianco 60/A 20089 Rozzano (MI). Ogni agenzia ha un proprio titolare ed è autonoma. Privacy policy | Policy utilizzo | Cookie policy