Villa singola in vendita

Aiello Del Sabato, Contrada Coste Anitra - Coste Anitra Primo
€ 200.000
3 locali 3 locali
110 Mq 110 Mq
4 bagni 4 bagni

Villa singola in vendita

Aiello Del Sabato, Contrada Coste Anitra - Coste Anitra Primo

Descrizione annuncio

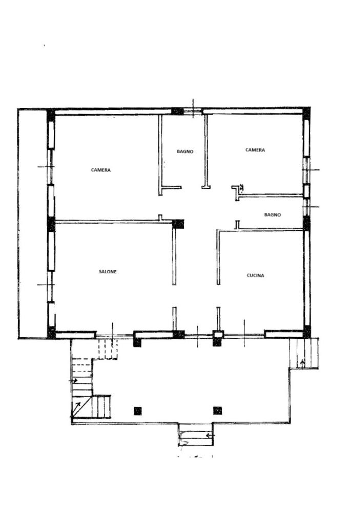
AIELLO DEL SABATO : In posizione dominante e riservata, con affaccio privilegiato sulla Valle del Sabato, la Tecnocasa di Serino propone in vendita villa singola. La proprietà, circondata da circa 1000 mq di spazio esterno, si sviluppa su una superficie complessiva di circa 310 mq e si articola su più livelli, offrendo ampi spazi interni ed esterni. Il piano rialzato si compone di salone con balcone, cucina abitabile con camino, due camere da letto e due bagni, il tutto caratterizzato da ambienti ampi e luminosi. Al piano terra si trovano il garage e il deposito, entrambi dotati di bagno, una caratteristica che ne accresce la versatilità e ne consente un utilizzo pratico e adattabile a diverse esigenze. Al primo piano, il sottotetto - allo stato grezzo - offre ulteriori 100 mq di superficie, con interessanti potenzialità di personalizzazione. Il giardino, ampio e ben curato, rappresenta uno dei punti di forza della proprietà. Oltre alla vista panoramica e alla riservatezza, è impreziosito dalla presenza di un forno a legna, perfettamente integrato nel contesto naturale e ideale per momenti di convivialità all’aperto. Questa villa costituisce un’ottima opportunità per chi desidera una residenza indipendente immersa nel verde, con ampi spazi esterni, vista impareggiabile e una posizione comoda rispetto ai principali centri e servizi del territorio.

Mostra tutto

Caratteristiche

Rif.:
61058577
Piano:
3 di 3 (Piano su più livelli)
Box:
1
Posti auto:
1
Balconi:
2
Terrazzi:
1
Mostra tutto
Prezzo Prezzo
€ 200.000
Rata mutuo Rata mutuo
€ 944 / mese
Spese annue Spese annue
€ 0
Proponi il tuo prezzoProponi il tuo prezzo

Classe Energetica

G
G
G
G
G
G
G
G
G
EP globale non rinnovabile:
18689.00 kW h/m² anno
EP globale rinnovabile:
0.00 kW h/m² anno
EP invernale del fabbricato:
EP estiva del fabbricato:
Anno di costruzione:
1990
Riscaldamento:
Autonomo
Tipo impianto:
A radiatori
Tipo alimentazione:
Metano

Ti interessa visionare l'immobile?

Fissa un appuntamento  Fissa un appuntamento

Richiedi informazioni

Clicca su Leggi per aprire l'informativa
* Questi campi sono obbligatori

Calcola il tuo mutuo

Semplice e senza impegno
Anticipo

( % )
Mutuo

( % )

pochi semplici passi

inserisci i tuoi dati
Questionario completato
Grazie per aver richiesto un appuntamento senza impegno con un nostro Consulente del Credito e Assicurativo.

Hai inserito correttamente tutti i dati necessari e a breve riceverai una e-mail con un link da convalidare per inviare i tuoi dati.
Affiliato
My House D.I.
Via Pescatore, 20/a 83028 Serino (AV)

Il nostro staff


  • Giampiero Russo
    Affiliato

  • Mauro D'Angelo
    Collaboratore

  • Valentina Faggiano
    Coordinatrice

  • Carmen Guarino
    Collaboratrice
Via Pescatore, 20/a 83028 Serino (AV)
Zona: Serino-Aiello del Sabato-Santo Stefano del Sole-San Michele di Serino
Mostra su mappa
Orari: Lunedì: 09:00 - 13:00 15:30 - 20:00 Martedì: 09:00 - 13:00 15:30 - 20:00 Mercoledì: 09:00 - 13:00 15:30 - 20:00 Giovedì: 09:00 - 13:00 15:30 - 20:00 Venerdì: 09:00 - 13:00 15:30 - 20:00 Sabato: 09:00 - 13:00 pomeriggio: Si riceve previo appuntamento Domenica: Chiuso
Affiliato
My House D.I.
Via Pescatore, 20/a 83028 Serino (AV)

2025 Tecnocasa Franchising S.p.A. - P. IVA 08365160152 - Via Monte Bianco 60/A 20089 Rozzano (MI). Ogni agenzia ha un proprio titolare ed è autonoma. Privacy policy | Policy utilizzo | Cookie policy